Home RAMS
Bussiness Center
RAMS
Industrial Park
RAMS
Residential Dudeşti
RAMS
Residential Tineretului
RAMS
Fitness
Parteneri

RAMS BUSSINESS CENTER

Prezentare generală Prezentare tehnică Galerie foto Planuri etaje Contact


S.C. RAMS BUSINESS PARK S.R.L. vă pune la dispoziţie un sediu nou pentru dumneavoastră şi angajaţii companiei pe care o reprezentaţi.

Prezentare generală

RAMS Bussiness Center - Cladire de birouri Clasa A

Arhitectura modernă, designul deosebit, calitatea materialelor şi finisajelor, toate proiectate şi construite pentru o clădire de clasa A, contribuie la confortul şi imaginea chiriaşilor ai RAMS Bussiness Center, asigurând persoanelor care lucrează sau vizitează această clădire o ambianţă plăcută şi civilizată.

Clădirea de birouri de clasa A, este situată în imediata vecinătate a Hypermarketului Cora Pantelimon, şi la doar 5 minute de Autostrada Bucureşti - Constanţa şi linia de centură a Capitalei, iar datorită poziţionării sale poate fi accesată şi de camioanele de mare tonaj fără plata de taxe către Primăria Bucureşti, un avantaj important în cazul relocărilor de mărime mare.

RAMS Bussiness Center beneficiază de amplasare excepţională, cu acces auto şi pietonal facil datorită diversităţii mijloacelor de transport în comun care deservesc zona (metrou - staţiile Republica şi Pantelimon, tramvai - liniile 14, 46, 55, autobuze - liniile 146, 147, 246, 346, 401, 410, 429, 430, 459, 461, maxi taxi - 701, 717), cât şi de o accesibilitate rapidă spre centrul Capitalei datorită bulevardelor pe 3 benzi care permit accesul spre şi dinspre RAMS Bussiness Center, atât spre şi dinspre centrul capitalei, axa Unirii - Victoriei, cât şi spre şi dinspre Aeroporturile Băneasa şi Otopeni, pe axa Pipera - Fundeni.

RAMS Bussiness Center se află la doar 5 minute de Autostrada Bucureşti - Constanţa şi linia de centură a Capitalei, iar datorită poziţionării sale poate fi accesată şi de camioanele de mare tonaj fără plata de taxe către Primăria Bucureşti, un avantaj important în cazul relocărilor de mărime mare.

Construită conform celor mai înalte standarde de calitate, clădirea RAMS Bussiness Center reprezintă alegerea ideală pentru companii sau instiţuţii ce îşi doresc un sediu reprezentativ, motiv pentru care aceasta a fost aleasă deja drept sediu de companii precum: RAMS Bussiness Center - Cladire de birouri Clasa A

  • S.C. CHEQUE DEJEUNER ROMANIA SRL,
  • S.C. ENEL MUNTENIA DISTRIBUTIE ROMĀNIA S.A. ,
  • S.C. EPTISA ROMÂNIA S.A.
  • S.C. VALORIS CENTER S.R.L
  • S.C. ELCOMEX I.E.A. S.A.
  • S.C. IMI INTERNATIONAL CO S.R.L.

Un avantaj extrem de important al RAMS Bussiness Center îl constituie faptul că managementul acestei clădiri de birouri este constituit dintr-o echipă cu experienţă de peste 10 ani în administrarea activelor imobiliare, având la dispoziţie un serviciu tehnic, ce acoperă toate specialităţile necesare în administrarea clădirii de birouri, compus din specialişti care au participat, pas cu pas, la întregul proces de construcţie al RAMS Bussiness Center.

Prezentare tehnică

Lucrările de construcţie ale RAMS Bussiness Center au fost demarate în Octombrie 2006, ele fiind finalizate 2 ani mai târziu, în Octombrie 2008, primii chiriaşi ocupând spaţiile închiriate încă din Iulie 2008. Întreaga construcţie a fost realizată cu respectarea proiectelor tehnice şi arhitecturale, precum şi cu folosirea unor soluţii inovatoare al căror scop este reducerea consumurilor de energie.

RAMS Bussiness Center are următoarea structură:
    RAMS Bussiness Center - Cladire de birouri Clasa A
  • Subsol general cu 60 locuri de parcare, spaţii de depozitare arhivă curentă şi altele, spaţii tehnice, etc. Accesul în clădire se face direct, prin intermediul a 2 dintre cele 4 lifturi KONE cu care este dotat RAMS Bussiness Center;
  • Parter, cu recepţie generală şi lobby-ul pentru accesul persoanelor care lucrează în clădire, precum şi a vizitatorilor;
  • O structură de 8 etaje de spaţii "open space" pentru activităţi de birouri, oficii, grupuri sanitare, terase pentru fumători, spaţii tehnice comune.
De asemenea, RAMS Bussiness Center beneficiază, din punct de vedere tehnic, de toate utilităţile şi facilităţile necesare funcţionării, la standardele solicitate în Uniunea Europeană pentru clădiri de birouri clasa A, precum:
  • ventiloconvectoare necarcasate pentru montaj în plafon fals în sistem de patru ţevi cu vane cu trei căi de rulare;
  • grilă liniară de refulare;
  • centrale tratare aer proaspăt cu recuperator de căldură în plăci;
  • centrală termică de 1.500 Kw cu două cazane cu arzător pe gaze;
  • răcitor de apă de 1.000 Kw cu două cillere răcite cu aer;
  • ventilatoare desfumare;
  • RAMS Bussiness Center - Cladire de birouri Clasa A
  • instalaţie anti - incendiu dotată cele mai performante sisteme;
  • bazin suplimentar de apă pentru de 500 mc;
  • coloană verticală de alimentare cu energie electrică sub formă capsulată;
  • pardoseli tehnice care permit amplasarea tuturor cablurilor electrice de putere, de internet, de telefonie, etc. sub podea tehnică, oferind o mare permisibilitate în aranjarea posturilor de lucru;
  • dispozitiv electronic de protecţie împotriva trăsnetelor;
  • magistrală de date de mare viteză;
  • diversitate de furnizori de servicii de telefonie şi internet;
  • detector adresabil;
  • acces control pe bază de cartele individuale;
  • sistem de sonorizare, muzică ambientală, anunţuri de interes public şi mesaje antipanică;
  • 3 posturi trafo echipate cu 7 transformatoare= 7.000 kw;
  • generator de curent;
  • sistem de pază permanent;
  • 4 lifturi de ultimă generaţie KONE (Finlanda);
  • RAMS Bussiness Center - Cladire de birouri Clasa A
  • sistem de supraveghere video monitorizat permanent.
  • Paza 24/7

RAMS Bussiness Center are o suprafaţă totală construită de 17.610 metri2 şi o suprafaţă netă închiriabilă de aproximativ 11.798 metri2, clădirea fiind înscrisă în Cartea Funciară a sectorului 3, Bucureşti.
La acest moment, spaţiile rămase neocupate însumează 3.887 metri2, suprafaţă structurată după cum urmează:

  • Etaj 2, suprafaţă de 929 metri2 open space

  • Etaj 3, suprafaţă de 1.479 metri2 - se poate compartimenta în două spaţii open space, independente, de 929 metri2 şi 550 metri2

  • Etaj 4, suprafaţă de 1.479 metri2 - se poate compartimenta în două spaţii open space, independente, de 929 metri2 şi 550 metri2

  • Menţiune: cheltuielile de compartimentare, cablare şi mochetare sunt în sarcina chiriaşului.

Galerie Foto

RAMS Bussiness Center RAMS Bussiness Center RAMS Bussiness Center RAMS Bussiness Center RAMS Bussiness Center
RAMS Bussiness Center RAMS Bussiness Center RAMS Bussiness Center RAMS Bussiness Center RAMS Bussiness Center
RAMS Bussiness Center RAMS Bussiness Center RAMS Bussiness Center RAMS Bussiness Center RAMS Bussiness Center
RAMS Bussiness Center RAMS Bussiness Center RAMS Bussiness Center RAMS Bussiness Center RAMS Bussiness Center
RAMS Bussiness Center RAMS Bussiness Center RAMS Bussiness Center RAMS Bussiness Center RAMS Bussiness Center
RAMS Bussiness Center RAMS Bussiness Center RAMS Bussiness Center RAMS Bussiness Center RAMS Bussiness Center

Planuri etaje

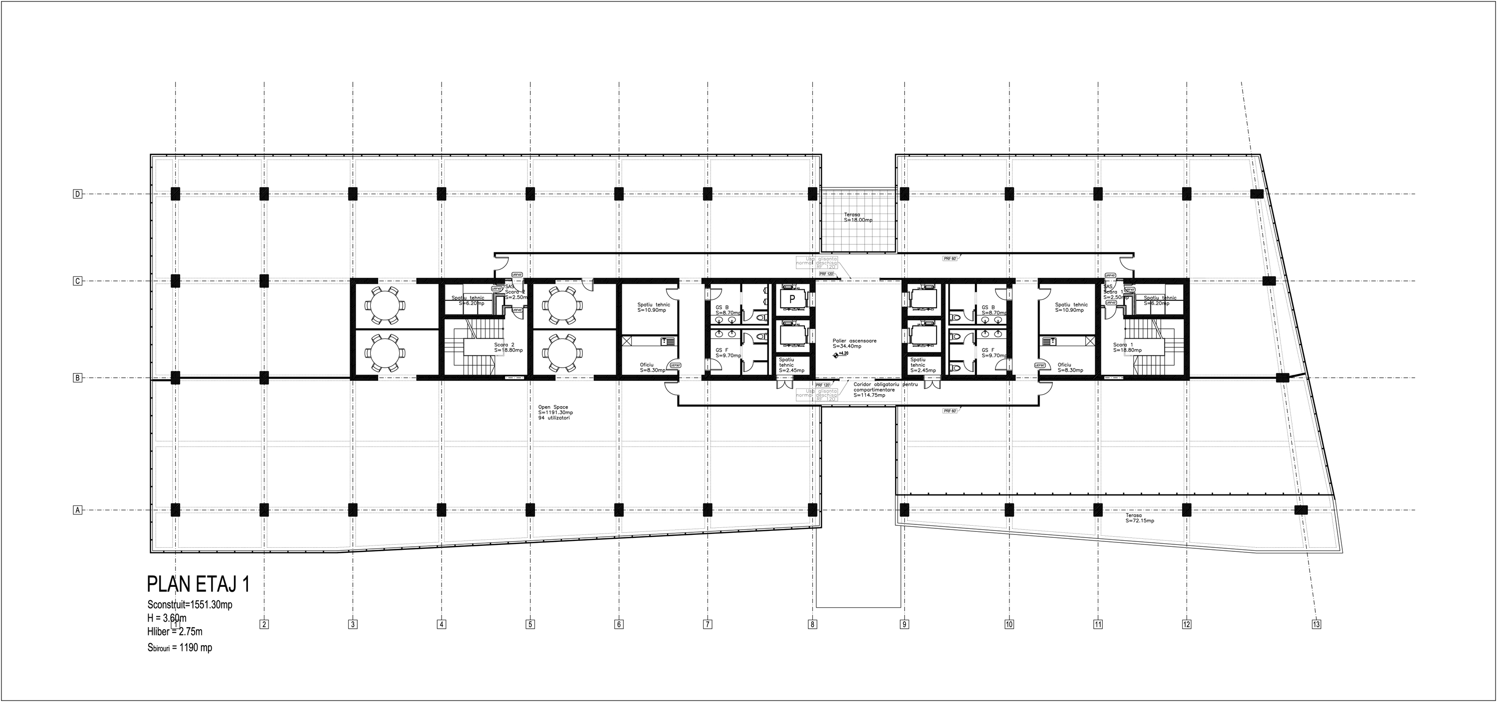
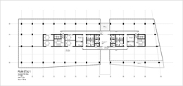
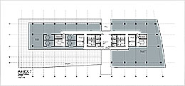
RAMS Center - Plan Etaj 1
PLAN ETAJ 1
S. construită: 1551,30mp
H: 3,60m
H liber: 2,75m
S. birouri: 1190mp
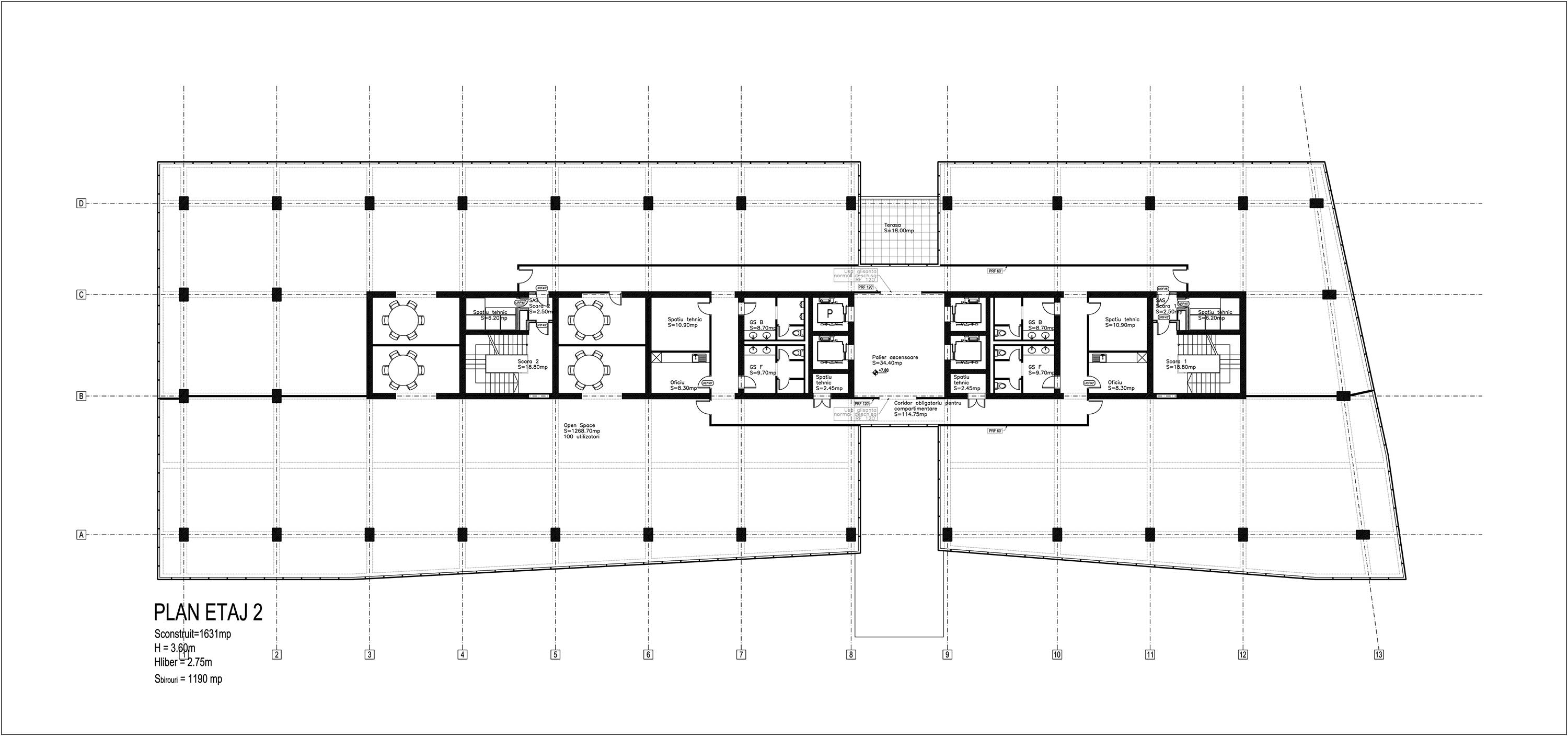
RAMS Center - Plan Etaj 2
PLAN ETAJ 2
S. construită: 1631mp
H: 3,60m
H liber: 2,75m
S. birouri: 1190mp
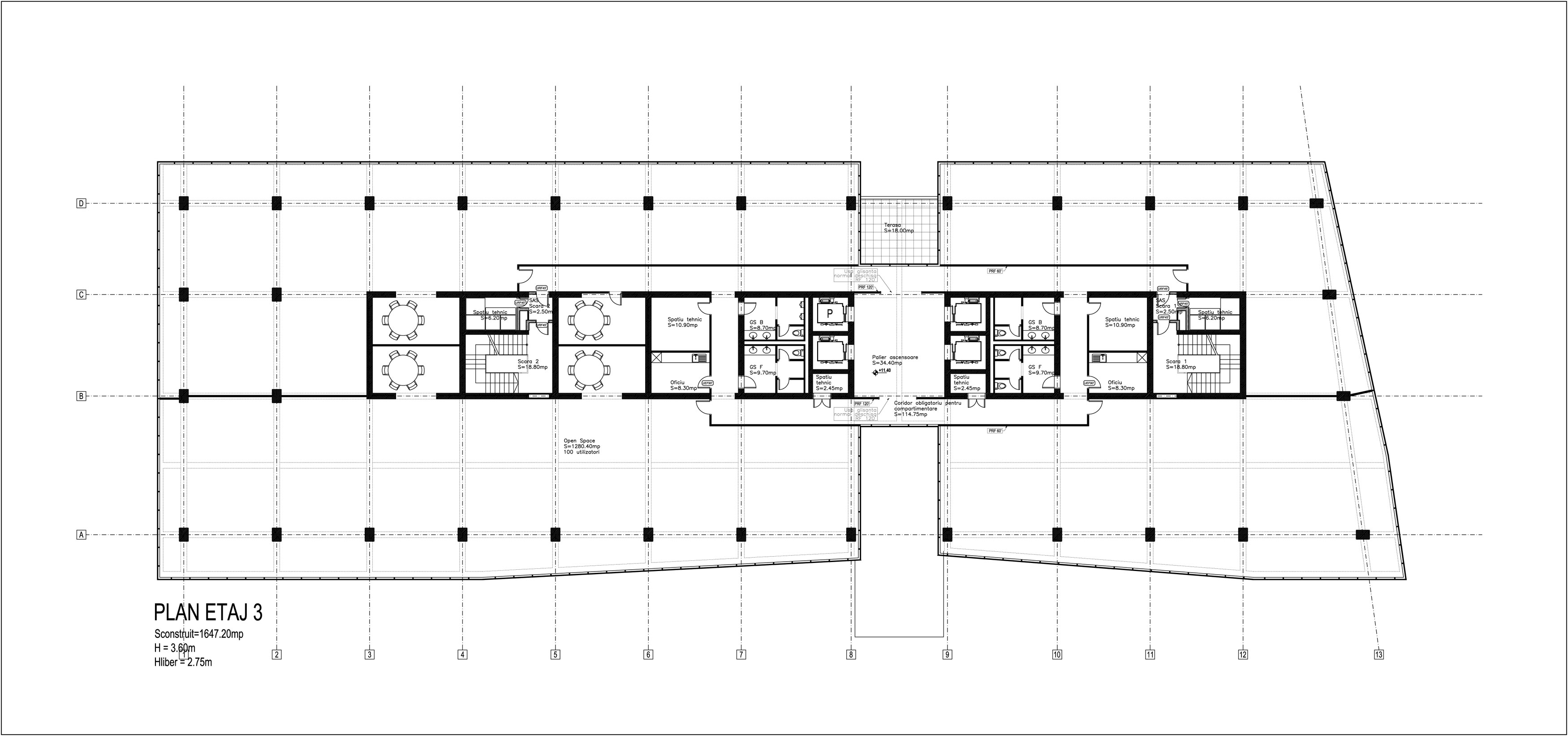
RAMS Center - Plan Etaj 3
PLAN ETAJ 3
S. construită: 1647,20mp
H: 3,60m
H liber: 2,75m
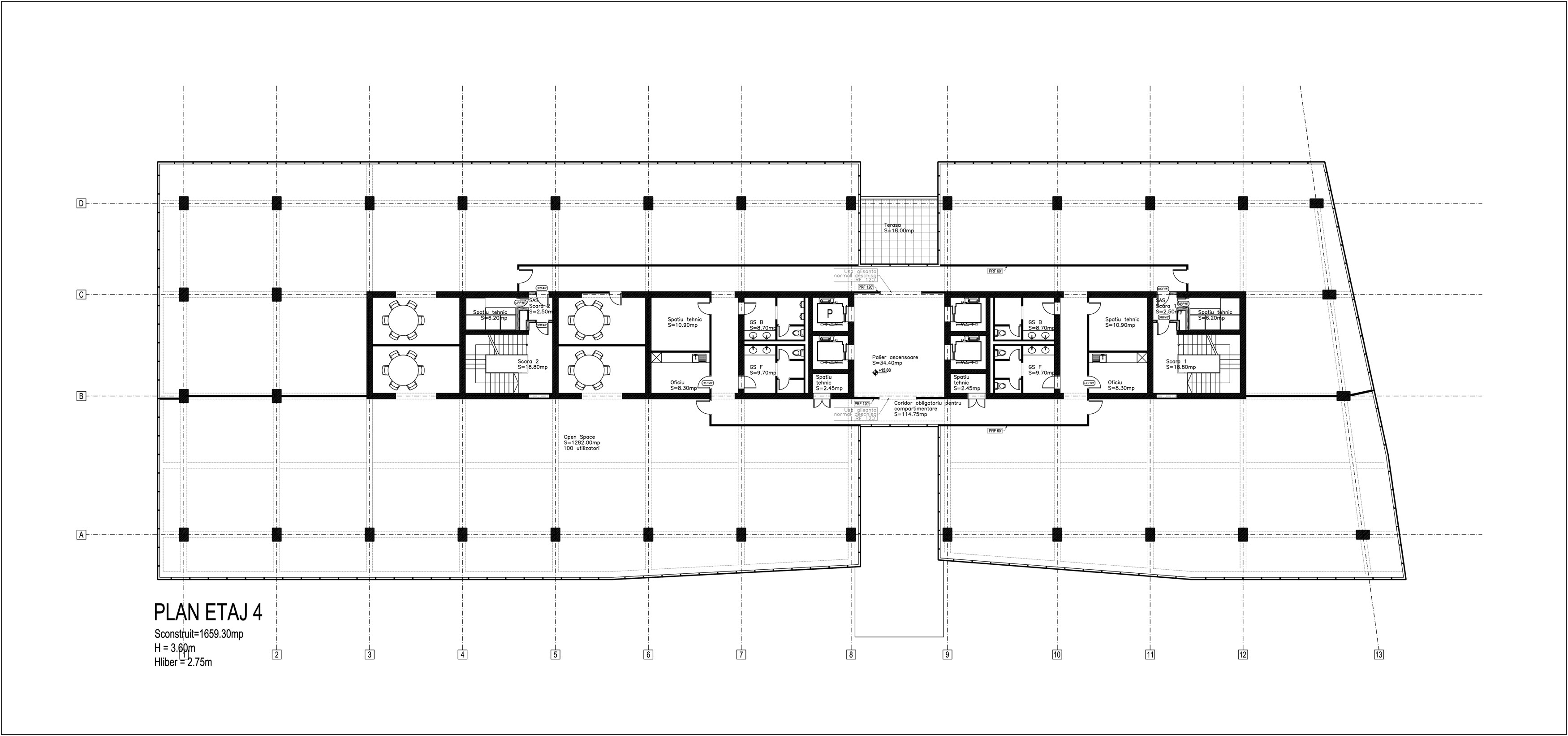
RAMS Center - Plan Etaj 4
PLAN ETAJ 4
S. construită: 1659,30mp
H: 3,60m
H liber: 2,75m
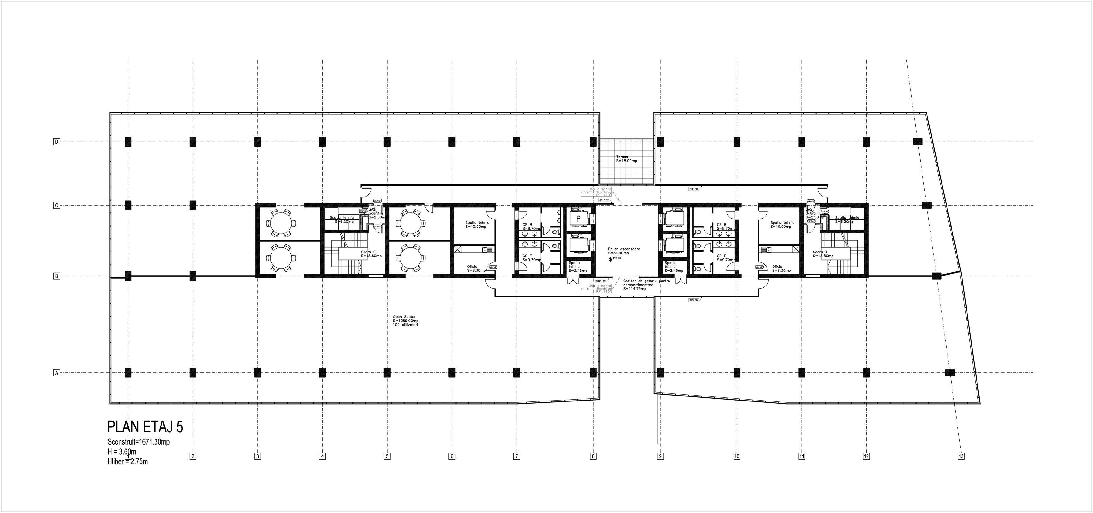
RAMS Center - Plan Etaj 5
PLAN ETAJ 5
S. construită: 1671,30mp
H: 3,60m
H liber: 2,75m
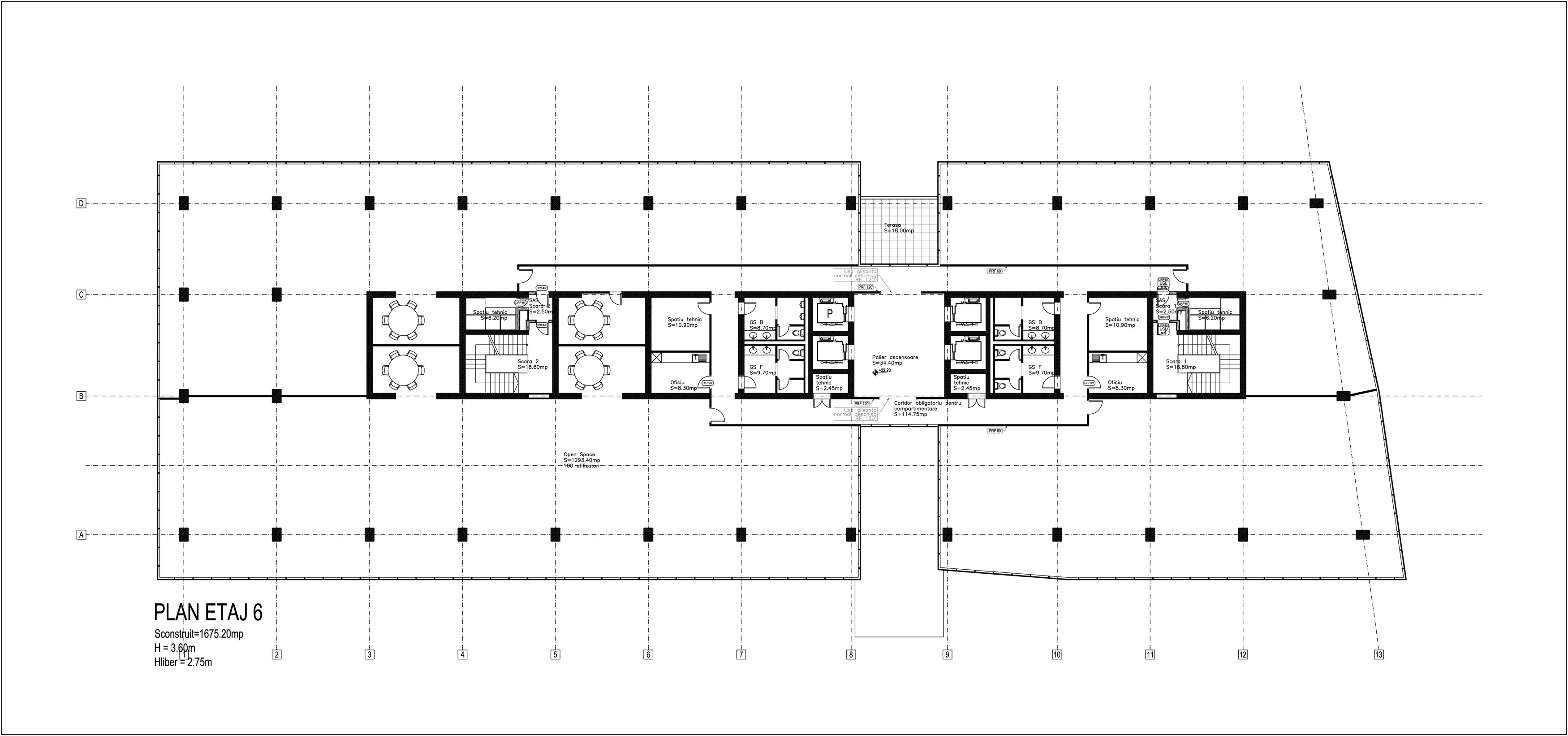
RAMS Center - Plan Etaj 6
PLAN ETAJ 6
S. construită: 1675,20mp
H: 3,60m
H liber: 2,75m
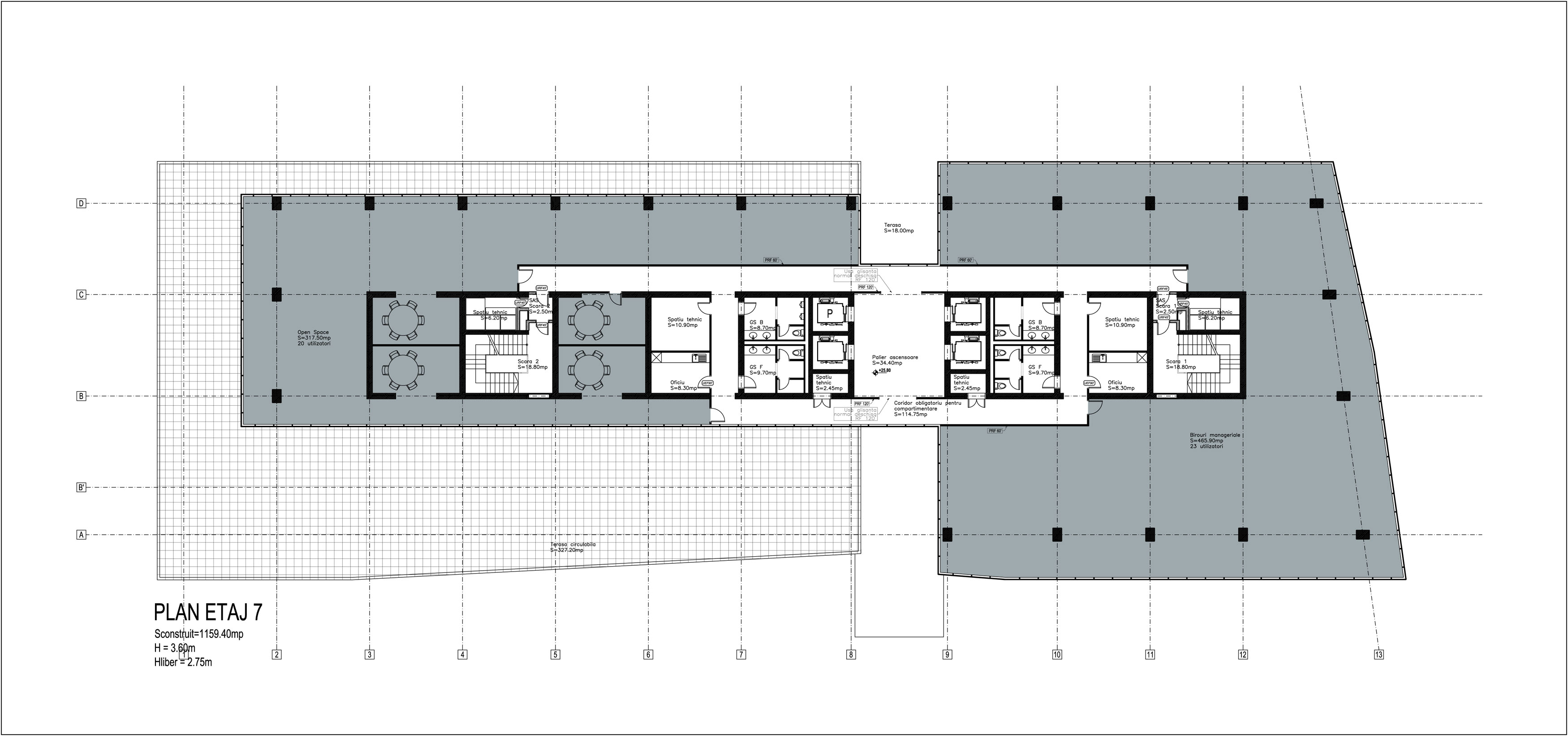
RAMS Center - Plan Etaj 7
PLAN ETAJ 7
S. construită: 1159,40mp
H: 3,60m
H liber: 2,75m
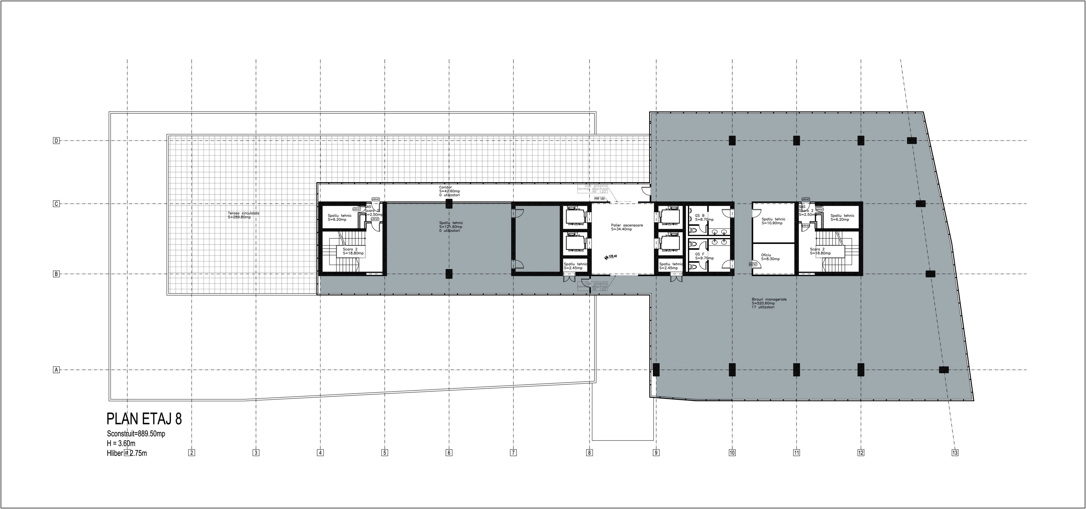
RAMS Center - Plan Etaj 8
PLAN ETAJ 8
S. construită: 889,50mp
H: 3,60m
H liber: 2,75m
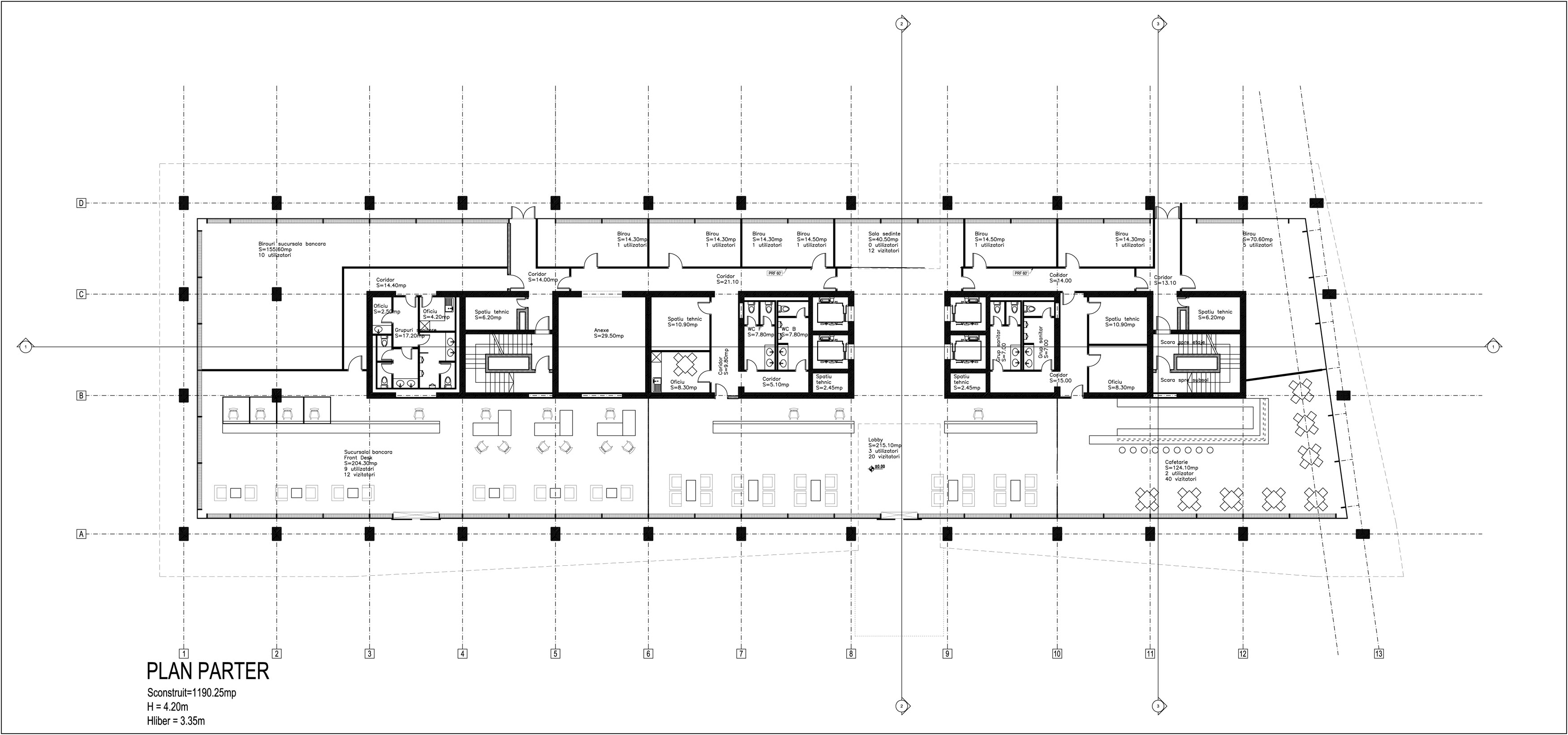
RAMS Center - Plan parter
PARTER
S. construită: 1190,25mp
H: 4,20m
H liber: 3,35m
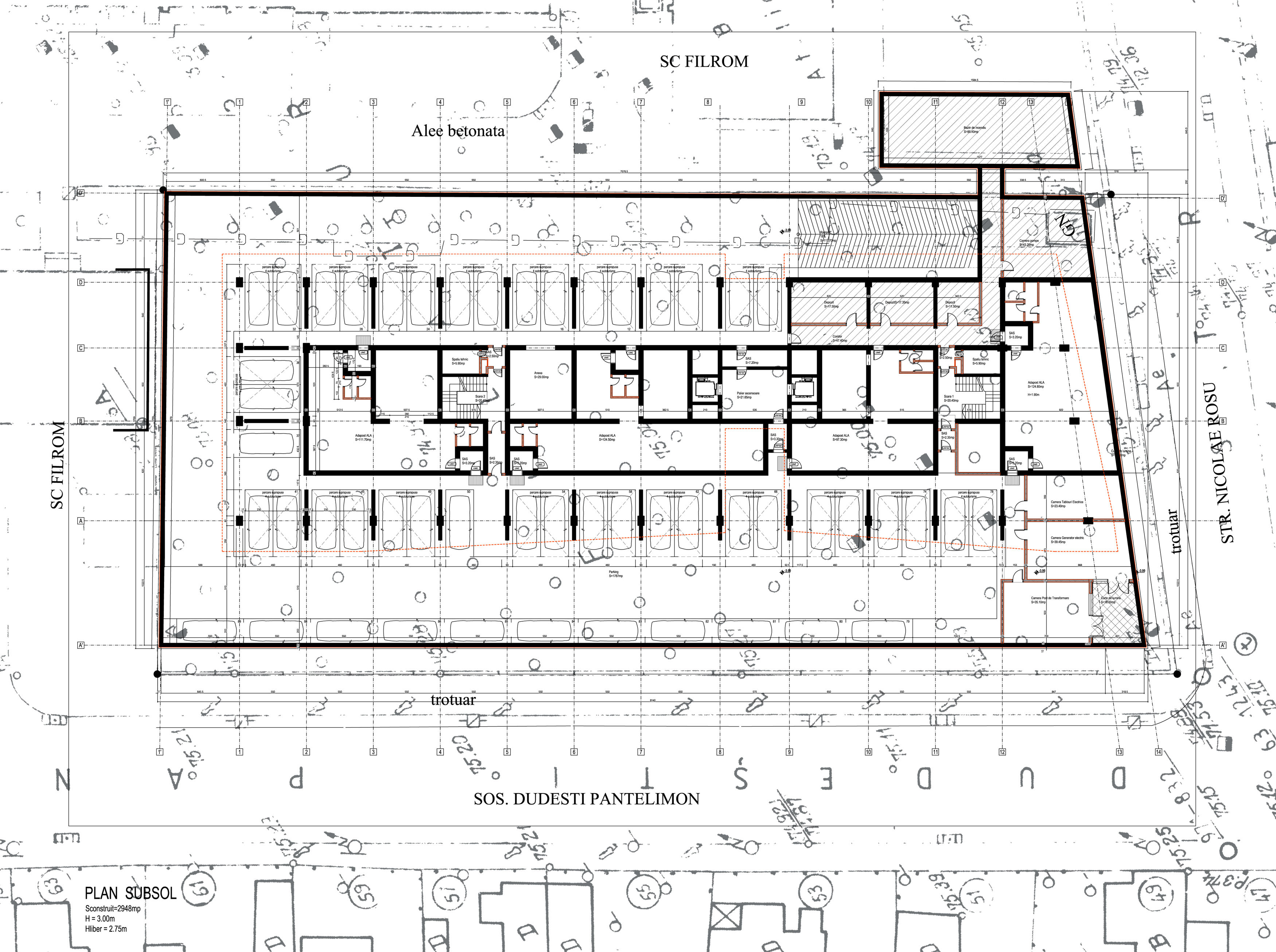
RAMS Center - Plan subsol
SUBSOL
S. construită: 2948mp
H: 3,00m
H liber: 2,75m

Contact

Pentru orice fel de informaţii suplimentare, vă rugăm să ne contactaţi.

Adresa: ŞOS. DUDEŞTI - PANTELIMON NR. 42, SECTOR 3, BUCUREŞTI

E-mail: office@ramsbusinesspark.ro

Telefon: 021 255 36 45
021 255 37 45
021 255 19 51
021 255 17 18

Fax: 021 255 30 70

Mobil: 0728 083 973
0742 394 248